CAD软件是一款多功能软件,可以设计室内平面图,也可以设计建筑图,设计的图适用于社会各行各业cad建筑图。 CAD画建筑图具体步骤如下:

一、CAD建立轴网

1、 建立矩形轴网

菜单:TS平面→轴网→矩形轴网(轴网→矩形轴网)




2、轴网标注

菜单:TS平面→轴网→轴网标注(轴网→轴网标注)




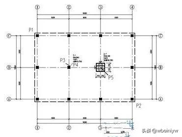
二、CAD建立柱网
1、方柱插入
菜单:TS平面→柱子→插方类柱 (柱子→插方类柱)
2、柱集中标注
菜单:TS平面→柱子→柱集中标注(柱子→柱集中标)
3、 柱详图
菜单:TS构件→矩形柱截面(柱子→矩形截面)
三、CAD布置地梁
1、 轴线布梁
菜单:TS平面→梁→轴线布梁(梁平面→轴线布梁)
2、梁柱取齐
菜单:TS平面→梁→梁线偏移(梁平面→梁线偏移)
四、基础绘制
1、基础计算
菜单:TS构件→构件计算→基础(基础→基础计算)
2、基础平面详图
3、基础剖面详图
4. 布基础平面
菜单:TS平面→布独立柱基础(基础→布柱独基)
